





TO VIEW PRICING: simply type in a sample address and square footage below to see our rates for that tier and location.
If any questions/issues arise during the online booking process, please reach us by either call or text at:
734-353-7128

High-quality media for commercial real estate listings is just as important, if not more important than high-quality media for residential listings.

Drone photography is especially important for CRE because it is one of the few tools available that has the ability to show multiple properties in one photograph while still maintaining it's high-quality.

The goal behind any real estate photography is to bring awareness to a property and to show that property in it's best light. It doesn't matter if it is a 1000 sqft office space or a 32 unit multi-family building. When you show a property in it's best light, you are associating worth with that property.

With drone photography, you can show a building's proximity to nearby attractions to benefit that building. For example, a Mancino's Pizza is near a Meijer's grocery store.

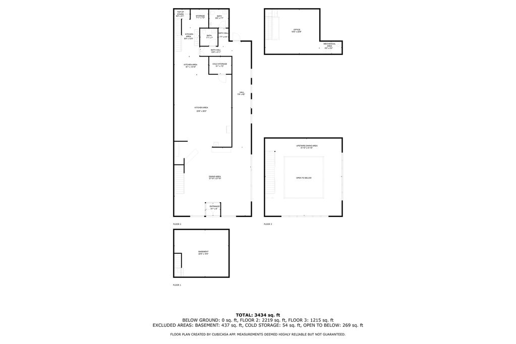
Detailed Floor plans are a great way to show complex property layouts to clarify any questions.

With detailed room measurements in a floor plan, potential buyers can quickly determine if their equipment or assets will fit seamlessly into the space and help them envision how their business operations will align with the property!
Copyright © 2025 O-ZONE - All Rights Reserved.
We use cookies to analyze website traffic and optimize your website experience. By accepting our use of cookies, your data will be aggregated with all other user data.